Foto levereras av Google Street View och kan vara oprecist:

Butikslokal att hyra, Sigtuna, Nymärsta gränd 3

Nymärsta gränd 3, Sigtuna
  • Butikslokal att hyra
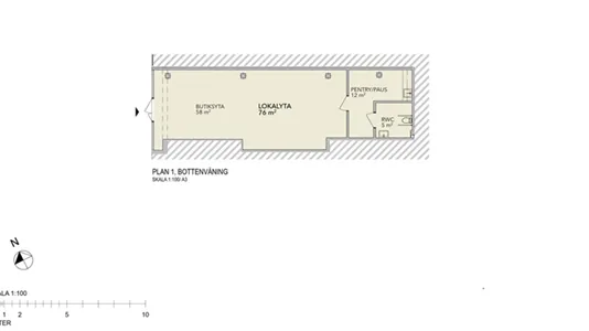
  • 76 m2
Butikslokal att hyra, Sigtuna, Nymärsta gränd 3
Nymärsta gränd 3, Sigtuna
  • Butikslokal att hyra
  • 76 m2
FÅ MER INFO OM LOKALEN
Du länkas till en annan portal, som kan kan kräva betalning eller skapande av en använderprofil

Butikslokal att hyra, Sigtuna, Nymärsta gränd 3

Fastpartner
Christopher Johansson
tlf: 08-4023460
Se e-postadressxxxxxxxxxxxxxxx

PRO-HYRESVÄRD

Läs mer

Läs om hyresvärd

Fakta

  • 537958
  • Butikslokal
  • Kontor
  • 76 m2
  • Inte angivet
FÅ MER INFO OM LOKALEN
Du länkas till en annan portal, som kan kan kräva betalning eller skapande av en använderprofil

Nyrenoverad inflyttningsklar butikslokal!

Fräsch, nyrenoverad butikslokal med ett av Märsta Centrums bästa lägen! Stora skyltfönster mot ett livligt gångstråk intill Normal.Nu har du möjlighet att etablera din verksamhet i en mindre helt nyrenoverad butikslokal med utmärkt läge i Märsta Centrum, precis intill Normal. Lokalen har stora fönsterpartier som ger ett fint ljusinsläpp och mycket goda exponeringsmöjligheter mot centrumstråket.Det här är en idealisk plats för dig som söker en synlig och lättillgänglig lokal i ett levande centrum med ett stabilt kundflöde. Lokalen passar utmärkt för butik eller serviceverksamhet och är tillgänglig för inflytt.Märsta är centralort i Sigtuna kommun och ligger mellan Stockholm och Uppsala, med direkt närhet till E4:an. Restid till Stockholm med bil cirka 35 minuter, till Uppsala cirka 30 minuter och Arlanda cirka 10. Från Märsta station går pendeltåg till Stockholms centralstation. Även fjärrtågen mellan Stockholm och Uppsala stannar i Märsta. Bra bussförbindelser finns till Sigtuna, Valsta, Steningehöjden och Arlanda. Gångavstånd från Märsta station till Märsta Centrum. Buss trafikerar sträckan och tar ett par minuter. Samtliga större busslinjer passerar Märsta C.Hitta hit med SLBesöksparkering gratis, 2 tim/dygn, för registrerade medlemmar 4 tim./dygnEnligt överenskommelseI Märsta Centrum hittar du allt samlat, vare sig det rör kontakt med kommunen, service, shopping, restauranger eller nöjen.Märsta och Sigtuna är en växande och attraktiv region både som plats att bo och leva på och som etableringsplats för företag. I och med de nya satsningar som Fastpartner gör ökar den attraktionskraften ytterligare.

Information och data

Denna kontorlokal, som även kan användas till Kontor ligger på Nymärsta gränd i Sigtuna. Sigtuna ligger i kommunen Sigtuna, som ligger i Stockholms län. Lokalen är totalt 76 m2.