Foto levereras av Google Street View och kan vara oprecist:
Kontor att hyra, Vallentuna, Tuna Torg 3
Tuna Torg 3, Vallentuna- Kontor att hyra
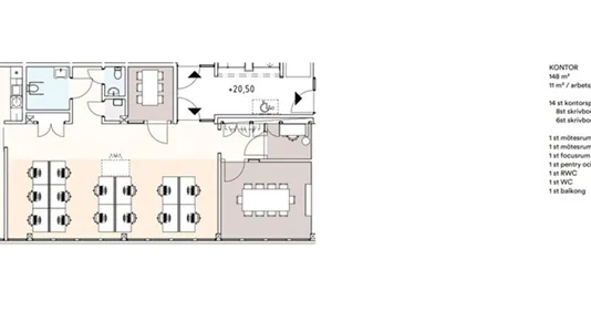
- 148 m2
Tuna Torg 3, Vallentuna
- Kontor att hyra
- 148 m2
FÅ MER INFO OM LOKALEN
Du länkas till en annan portal, som kan kan kräva betalning eller skapande av en använderprofil
Kontor att hyra, Vallentuna, Tuna Torg 3
Tuna Torg 3
Ljust och fräscht kontor mitt i centrum!Nu finns möjligheten att etablera er verksamhet i attraktiva kontorslokaler mitt i Vallentuna Centrum. Här sitter ni med närhet till service, handel, restauranger och all tänkbar vardagsservice ett perfekt läge för både medarbetare och besökare.Fastigheten genomgår just nu en omfattande upprustning, vilket ger er en unik möjlighet att flytta in i helt nyrenoverade, moderna och fräscha kontor. Lokalerna anpassas i dialog med er som hyresgäst, vilket innebär att ni har goda möjligheter att påverka planlösning och utformning efter verksamhetens behov.Här skapar vi effektiva och trivsamma arbetsplatser med fokus på kvalitet, flexibilitet och långsiktighet.Välkommen att kontakta oss för mer information eller för att boka en visning!Öppen eller rumVallentuna centrum har mycket goda kommunikationer med direkt närhet till Vallentuna station där Roslagsbanans linje 27 trafikerar med täta avgångar och en restid på cirka 25 30 minuter till Stockholm Östra. Intill stationen ligger bussterminalen som erbjuder flera linjer mot bland annat Danderyds sjukhus, Täby, Arninge, Lindholmen och Kårsta, vilket ger smidiga byten och god tillgänglighet inom hela norra Stockholm. Centrum nås även enkelt med bil via väg 268 och anslutningar till E18, medan gång- och cykelvägar knyter ihop området med omkringliggande stadsdelar.RoslagsbananRoslagsbanan är det snabbaste och mest använda färdsättet till Vallentuna.Linje 27 (Stockholm Östra Vallentuna Kårsta) trafikerar området.
Restid från Stockholm Östra till Vallentuna är cirka 25 30 minuter.
Avgångar går tätt, särskilt under rusningstid.BussförbindelserPrecis intill stationen ligger Vallentuna bussterminal, vilket gör det enkelt att byta mellan tåg och buss. Flera linjer trafikerar området, bl.a.:Linje 610: Vallentuna Danderyds sjukhus (bra byte till tunnelbana).
Linje 660: Vallentuna Arninge Täby.
Linje 662: Vallentuna Lindholmen Kårsta.
Linje 524/525: Lokala linjer inom kommunen.
Bussarna knyter ihop Vallentuna med närliggande områden såsom Täby, Arninge, Lindholmen, Bällstaberg, Karby och Kårsta.BilVallentuna centrum nås enkelt via väg 268 samt via koppling till E18 och vidare till Norrorts större trafikleder.Till Arninge/Täby: ca 10 15 minuter
Till Danderyd/Stockholm norr: ca 20 25 minuter
Gott om parkeringsmöjligheter i anslutning till centrum.Hitta hit med SLVallentuna centrum erbjuder ett brett och bekvämt serviceutbud med allt från matvarubutik, apotek och optiker till frisörer, blomsterhandel och flera specialbutiker. Här finns omkring femtio verksamheter samlade, vilket gör det enkelt att uträtta ärenden på samma ställe. Restaurang- och caféutbudet består av flera alternativ för både lunch, middag och fika, där bland annat lokala bagerier, kvarterskrogar och enklare matställen bidrar till en levande och småskalig stadskärna. Kombinationen av praktisk vardagsservice, butiker och lättillgängliga matmöjligheter skapar ett centrum som är både funktionellt och trivsamt för boende och besökare.Gott om utrymme på centrumets parkeringsytor och garage.Enligt överenskommelseFastigheterna är utformade för att vara lättillgängliga med generösa trottoarer, öppna torgytor och nära kopplingar till både bussterminalen och Roslagsbanans station. Många av byggnaderna har nyligen moderniserats eller fått uppgraderade fasader, vilket ger området en fräsch och sammanhållen estetik. I direkt anslutning ligger även Vallentuna Kulturhus en central del av stadsbilden som bidrar med offentliga funktioner och mötesplatser.Tillsammans skapar centrumfastigheterna en trygg, levande och funktionell kärna som rymmer handel, samhällsservice och vardagsliv på ett naturligt sätt.Omgivningen kring Vallentuna centrum präglas av en småskalig och trivsam stadsmiljö med en blandning av moderna byggnader, öppna torgytor och gröna inslag. Runt centrum ligger Vallentuna torg med sitt öppna, ljusa läge och omgivande butiker, vilket skapar en naturlig samlingspunkt. Direkt i anslutning finns även Vallentuna Kulturhus med bibliotek, konsthall och mötesplatser, vilket ger området en kulturell och dynamisk karaktär. Bebyggelsen runt centrum består främst av låga kvartershus, bostäder och kommunala verksamheter, vilket gör området lättorienterat och lugnt. Bara några minuters promenad bort finns gröna parker, gångstråk och närhet till Vallentunasjöns rekreationsområden, vilket ger god balans mellan stadsliv och natur. Kombinationen av service, kultur, bostäder och grönområden gör omgivningen både levande och lättillgänglig för boende och besökare.
Restid från Stockholm Östra till Vallentuna är cirka 25 30 minuter.
Avgångar går tätt, särskilt under rusningstid.BussförbindelserPrecis intill stationen ligger Vallentuna bussterminal, vilket gör det enkelt att byta mellan tåg och buss. Flera linjer trafikerar området, bl.a.:Linje 610: Vallentuna Danderyds sjukhus (bra byte till tunnelbana).
Linje 660: Vallentuna Arninge Täby.
Linje 662: Vallentuna Lindholmen Kårsta.
Linje 524/525: Lokala linjer inom kommunen.
Bussarna knyter ihop Vallentuna med närliggande områden såsom Täby, Arninge, Lindholmen, Bällstaberg, Karby och Kårsta.BilVallentuna centrum nås enkelt via väg 268 samt via koppling till E18 och vidare till Norrorts större trafikleder.Till Arninge/Täby: ca 10 15 minuter
Till Danderyd/Stockholm norr: ca 20 25 minuter
Gott om parkeringsmöjligheter i anslutning till centrum.Hitta hit med SLVallentuna centrum erbjuder ett brett och bekvämt serviceutbud med allt från matvarubutik, apotek och optiker till frisörer, blomsterhandel och flera specialbutiker. Här finns omkring femtio verksamheter samlade, vilket gör det enkelt att uträtta ärenden på samma ställe. Restaurang- och caféutbudet består av flera alternativ för både lunch, middag och fika, där bland annat lokala bagerier, kvarterskrogar och enklare matställen bidrar till en levande och småskalig stadskärna. Kombinationen av praktisk vardagsservice, butiker och lättillgängliga matmöjligheter skapar ett centrum som är både funktionellt och trivsamt för boende och besökare.Gott om utrymme på centrumets parkeringsytor och garage.Enligt överenskommelseFastigheterna är utformade för att vara lättillgängliga med generösa trottoarer, öppna torgytor och nära kopplingar till både bussterminalen och Roslagsbanans station. Många av byggnaderna har nyligen moderniserats eller fått uppgraderade fasader, vilket ger området en fräsch och sammanhållen estetik. I direkt anslutning ligger även Vallentuna Kulturhus en central del av stadsbilden som bidrar med offentliga funktioner och mötesplatser.Tillsammans skapar centrumfastigheterna en trygg, levande och funktionell kärna som rymmer handel, samhällsservice och vardagsliv på ett naturligt sätt.Omgivningen kring Vallentuna centrum präglas av en småskalig och trivsam stadsmiljö med en blandning av moderna byggnader, öppna torgytor och gröna inslag. Runt centrum ligger Vallentuna torg med sitt öppna, ljusa läge och omgivande butiker, vilket skapar en naturlig samlingspunkt. Direkt i anslutning finns även Vallentuna Kulturhus med bibliotek, konsthall och mötesplatser, vilket ger området en kulturell och dynamisk karaktär. Bebyggelsen runt centrum består främst av låga kvartershus, bostäder och kommunala verksamheter, vilket gör området lättorienterat och lugnt. Bara några minuters promenad bort finns gröna parker, gångstråk och närhet till Vallentunasjöns rekreationsområden, vilket ger god balans mellan stadsliv och natur. Kombinationen av service, kultur, bostäder och grönområden gör omgivningen både levande och lättillgänglig för boende och besökare.
Information och data
Denna kontorlokal ligger på Tuna Torg i Vallentuna. Vallentuna ligger i kommunen Vallentuna, som ligger i Stockholms län. Lokalen är totalt 148 m2.