Foto levereras av Google Street View och kan vara oprecist:

Kontor att hyra, Vallentuna, Tuna Torg 2-4

Tuna Torg 2-4, Vallentuna
  • Kontor att hyra
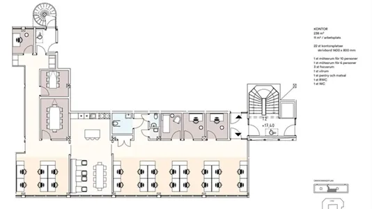
  • 238 m2
Kontor att hyra, Vallentuna, Tuna Torg 2-4
Tuna Torg 2-4, Vallentuna
  • Kontor att hyra
  • 238 m2
FÅ MER INFO OM LOKALEN
Du länkas till en annan portal, som kan kan kräva betalning eller skapande av en använderprofil

Kontor att hyra, Vallentuna, Tuna Torg 2-4

Fastpartner
Christopher Johansson
tlf: 08-4023460
Se e-postadressxxxxxxxxxxxxxxx

PRO-HYRESVÄRD

Läs mer

Läs om hyresvärd

Fakta

  • 567285
  • Kontor
  • 238 m2
  • Inte angivet

Tuna Torg 2-4

Modernt kontor i hjärtat av Vallentuna Centrum.Nu finns möjligheten att etablera er verksamhet i attraktiva kontorslokaler mitt i Vallentuna Centrum. Här sitter ni med närhet till service, handel, restauranger och all tänkbar vardagsservice ett perfekt läge för både medarbetare och besökare.Kommunikationerna är mycket goda med Roslagsbanan som tar er till Stockholm Östra på ca 30 minuter samt flera busslinjer i direkt anslutning. För den som pendlar med bil finns goda parkeringsmöjligheter i området.Fastigheten genomgår just nu en omfattande upprustning, vilket ger er en unik möjlighet att flytta in i helt nyrenoverade, moderna och fräscha kontor. Lokalerna anpassas i dialog med er som hyresgäst, vilket innebär att ni har goda möjligheter att påverka planlösning och utformning efter verksamhetens behov.Här skapar vi effektiva och trivsamma arbetsplatser med fokus på kvalitet, flexibilitet och långsiktighet.Välkommen att kontakta oss för mer information eller för att boka en visning!Öppen eller rumsindelatCa 1 minuts promenad från Vallentuna station och Roslagsbanan som tar dig till Östermalm på 30 minuter. Buss 610 mellan Danderyds sjukhus och Vallentuna stannar utanför.Hitta hit med SLFastigheten ligger mitt i Valletuna centrum. Här finns förutom ICA, Coop och Systembolaget även restaunger som Bores, Misoras Sushi och Brödernas.Enligt överenskommelseFastigheten är ett 3 vånings hus med butikslokaler i markplan. Det finns hiss och trapphus vid varje port.Fastigheten ligger mitt i Vallentuna centrum. Detta är Vallentuna kommuns centrum hjärta. Här finner man flera olika matbutiker och restauranger. Det finns flera oilka affärer och även bowlinghall.

Information och data

Denna kontorlokal ligger på Tuna Torg i Vallentuna. Vallentuna ligger i kommunen Vallentuna, som ligger i Stockholms län. Lokalen är totalt 238 m2.