Foto levereras av Google Street View och kan vara oprecist:
Kontor att hyra, Eskilstuna, Rademachergatan
Rademachergatan, Eskilstuna- Kontor att hyra
- 740 m2
Rademachergatan, Eskilstuna
- Kontor att hyra
- 740 m2
FÅ MER INFO OM LOKALEN
Du länkas till en annan portal, som kan kan kräva betalning eller skapande av en använderprofil
Kontor att hyra, Eskilstuna, Rademachergatan
Typ
Välkommen till möjligheternas kvarter!
Här erbjuder vi effektiva lösningar då lokalerna anpassas efter just er verksamhet. Planlösning och ytskikt skissas fram tillsammans med hyresgästen - vård- eller utbildningslokaler, kontorslandskap, enskilda kontor, konferensrum mm, vilka behov har ni?
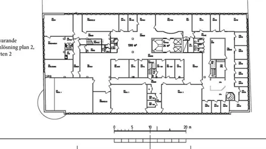
I Vörten 2 finns möjlighet att hyra lokaler frånkvm.
Varmgarage finns i fastigheten. Flertalet utomhusparkeringar och parkeringshus är belägna inom gångavstånd i centrum.
Övrigt, kontor
m2 - övrigt, kontor
Hiss finns i fastigheten
Enligt överenskommelse.
Eskilstuna/Eskilstuna/Centralt
Rademachergatan 8
Energiklass: F. 188 kWh/m² år.
1976
Vörten 2.
Fastigheten Vörten 2 har ett mycket centralt läge intill Fristadstorget med gångavstånd till tåg- och busstation, shopping, restauranger, gym, apotek, frisörer, hotell, Mälardalens Universitet mm. Ett stenkast från Stadsparken och promenadstråk runt Eskilstunaån. Till Munktellbadet och Volvo CE Arena är det en kort promenad på ca 10 minuter.
Fastigheten ligger endast ett par hundra meter från tågstationen och Resecentrum med täta avgångar till bl a Stockholm, Västerås och Örebro. Ett par minuters promenad till de flesta lokala busslinjerna.
Här erbjuder vi effektiva lösningar då lokalerna anpassas efter just er verksamhet. Planlösning och ytskikt skissas fram tillsammans med hyresgästen - vård- eller utbildningslokaler, kontorslandskap, enskilda kontor, konferensrum mm, vilka behov har ni?
I Vörten 2 finns möjlighet att hyra lokaler frånkvm.
Varmgarage finns i fastigheten. Flertalet utomhusparkeringar och parkeringshus är belägna inom gångavstånd i centrum.
Typ
Övrigt, kontor
Lokalnr
Storlek
m2 - övrigt, kontor
Hiss
Hiss finns i fastigheten
Tillträde
Enligt överenskommelse.
Kommun/Ort/Område
Eskilstuna/Eskilstuna/Centralt
Gatuadress
Rademachergatan 8
Energiprestanda
Energiklass: F. 188 kWh/m² år.
Byggår (Renovår)
1976
Fastighetsbeskrivning
Vörten 2.
Omgivning
Fastigheten Vörten 2 har ett mycket centralt läge intill Fristadstorget med gångavstånd till tåg- och busstation, shopping, restauranger, gym, apotek, frisörer, hotell, Mälardalens Universitet mm. Ett stenkast från Stadsparken och promenadstråk runt Eskilstunaån. Till Munktellbadet och Volvo CE Arena är det en kort promenad på ca 10 minuter.
Kommunikationer
Fastigheten ligger endast ett par hundra meter från tågstationen och Resecentrum med täta avgångar till bl a Stockholm, Västerås och Örebro. Ett par minuters promenad till de flesta lokala busslinjerna.
Information och data
Denna kontorlokal ligger på Rademachergatan i Eskilstuna. Eskilstuna ligger i kommunen Eskilstuna, som ligger i Södermanland. Lokalen är totalt 740 m2.