Foto levereras av Google Street View och kan vara oprecist:
Kontor att hyra, Gotland, Visby,
, Gotland- Kontor att hyra
- 631 m2
, Gotland
- Kontor att hyra
- 631 m2
FÅ MER INFO OM LOKALEN
Du länkas till en annan portal, som kan kan kräva betalning eller skapande av en använderprofil
Kontor att hyra, Gotland, Visby,
Fakta
- 247698
- Kontor
- 631 m2
- Inte angivet
FÅ MER INFO OM LOKALEN
Du länkas till en annan portal, som kan kan kräva betalning eller skapande av en använderprofil
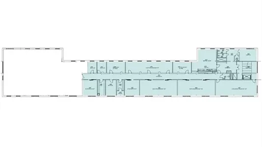
Välplanerad kontorslokal i attraktivt företagsområde
Välkommen att hyra denna ljusa och rymliga kontorslokal om 631 kvm.
Lokalen ligger i en fin tegelfastighet i funkisstil belägen i trevliga Visborgsområdet.
Lokalen består av flera mindre kontorsrum, öppet kontorslandskap och konferensrum. Utöver kontorsytorna erbjuder lokalen kapprum, pentry, matsal och tre toaletter. Ytskikten i lokalen är endast några år gamla och håller en genomgående hög standard.
Övriga hyresgäster i byggnaden är Region Gotland och Securitas.
Kontakta oss gärna för mer infortmation och visning.
Kontor
631 m2 - kontor
Hiss finns i fastigheten
Enligt överenskommelse.
Gotland/Visby/Visby
Visborgsallén 39-41
1940
Fastigheten är belägen i Visborgsområdet, ett naturnära område som tidigare huserades av militären men idag utgörs av framför allt kontor för myndigheter och företag.
Till centrala Visby är det ca tre och en halv kilometer.
I området finns lunchrestauranger, matbutik och gym.
Avgiftsbelagd parkering finns i området.
Lokalen ligger i en fin tegelfastighet i funkisstil belägen i trevliga Visborgsområdet.
Lokalen består av flera mindre kontorsrum, öppet kontorslandskap och konferensrum. Utöver kontorsytorna erbjuder lokalen kapprum, pentry, matsal och tre toaletter. Ytskikten i lokalen är endast några år gamla och håller en genomgående hög standard.
Övriga hyresgäster i byggnaden är Region Gotland och Securitas.
Kontakta oss gärna för mer infortmation och visning.
Typ
Kontor
Lokalnr
Storlek
631 m2 - kontor
Hiss
Hiss finns i fastigheten
Tillträde
Enligt överenskommelse.
Kommun/Ort/Område
Gotland/Visby/Visby
Gatuadress
Visborgsallén 39-41
Byggår (Renovår)
1940
Omgivning
Fastigheten är belägen i Visborgsområdet, ett naturnära område som tidigare huserades av militären men idag utgörs av framför allt kontor för myndigheter och företag.
Kommunikationer
Till centrala Visby är det ca tre och en halv kilometer.
Service
I området finns lunchrestauranger, matbutik och gym.
Parkering
Avgiftsbelagd parkering finns i området.
Information och data
Denna kontorlokal ligger på Visborgsallén i Gotland. Gotland ligger i kommunen Gotland, som ligger på Gotland (region). Lokalen är totalt 631 m2.