Foto levereras av Google Street View och kan vara oprecist:
Kontor att hyra, Kungsholmen,
, Stockholm Kungsholmen- Kontor att hyra
- 158 m2
- 30 285 kr. per månad
, Stockholm Kungsholmen
- Kontor att hyra
- 158 m2
- 30 285 kr. per månad
FÅ MER INFO OM LOKALEN
Du länkas till en annan portal, som kan kan kräva betalning eller skapande av en använderprofil
Kontor att hyra, Kungsholmen,
Fakta
- 496110
- Kontor
- 158 m2
- 363 420 kr.
- 30 285 kr.
- 2 300,13 kr.
FÅ MER INFO OM LOKALEN
Du länkas till en annan portal, som kan kan kräva betalning eller skapande av en använderprofil
Kontor att hyra på Kungsholmen
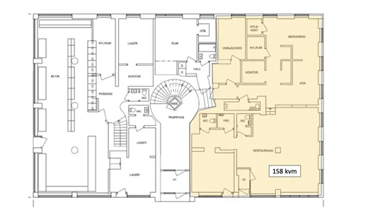
Välkommen till denna genomgående butikslokal med generöst ljusinsläpp från flera stora, välexponerade skyltfönster. Lokalens flexibla planlösning erbjuder många möjligheter för din verksamhet.
Genomgående planlösning med mycket dagsljus.
Tidigare inredd som restaurang (vissa installationer kan finnas kvar)
Möjlighet att hyra parkeringsplatser i anslutning till lokalen
Perfekt för:
Showroom, Kontor med representativ front, Detaljhandel eller kanske en utställningslokal.
Läge och kommunikationer.
Strategiskt placerad på gränsen mellan Kungsholmen och Marieberg med god exponering och kundflöde. Utmärkta kommunikationer med närhet till både tunnelbana och busshållplatser.
Se även film på lokalen:
Viktigt, lokalen lämpar sig inte för restaurang-, café- eller livsmedelsverksamhet.
Wennerbergsgatan 1
Yta: ca 158 kvm
Hyra: ca 30 280:- /mån ex moms (Värme & vatten ingår)
Hyran gäller som lokalen ser ut idag.
Fastighetsskatt: ca 3 000:-/mån ex moms
Tillträde omgående enligt överenskommelse.
Hyresdeposition kommer begäras.
Titta gärna på området innan vi bokar visning.
Mailkontakt med Mäklaren för bokning av visning.
Group AB • Michel Rydberg • michel@.se
Genomgående planlösning med mycket dagsljus.
Tidigare inredd som restaurang (vissa installationer kan finnas kvar)
Möjlighet att hyra parkeringsplatser i anslutning till lokalen
Perfekt för:
Showroom, Kontor med representativ front, Detaljhandel eller kanske en utställningslokal.
Läge och kommunikationer.
Strategiskt placerad på gränsen mellan Kungsholmen och Marieberg med god exponering och kundflöde. Utmärkta kommunikationer med närhet till både tunnelbana och busshållplatser.
Se även film på lokalen:
Viktigt, lokalen lämpar sig inte för restaurang-, café- eller livsmedelsverksamhet.
Wennerbergsgatan 1
Yta: ca 158 kvm
Hyra: ca 30 280:- /mån ex moms (Värme & vatten ingår)
Hyran gäller som lokalen ser ut idag.
Fastighetsskatt: ca 3 000:-/mån ex moms
Tillträde omgående enligt överenskommelse.
Hyresdeposition kommer begäras.
Titta gärna på området innan vi bokar visning.
Mailkontakt med Mäklaren för bokning av visning.
Group AB • Michel Rydberg • michel@.se
Information och data
Denna kontorlokal ligger på Wennerbergsgatan på Kungsholmen. Kungsholmen ligger i kommunen , som ligger i Stockholm. Lokalen är totalt 158 m2. Hyrespris: 363 420 kr. per år.