Foto levereras av Google Street View och kan vara oprecist:
    
Kontor att hyra, Landskrona,
, Landskrona- Kontor att hyra
- 177 m2
![Kontor att hyra, Landskrona, <span class="blurred street" onclick="ProcessAdRequest(247683)"><span class="hint">Se gatunamn</span>[xxxxxxxxxx]</span>](/LPUploadImages/Cache/1fa20a08-58da-4b8c-b615-88c3ee1daca9_134.webp?t=638188218940811866) 
            
                , Landskrona
                
            - Kontor att hyra
- 177 m2
            FÅ MER INFO OM LOKALEN
            Du länkas till en annan portal, som kan kan kräva betalning eller skapande av en använderprofil
Kontor att hyra, Landskrona,
Fakta
- 247683
- Kontor
- 177 m2
- Inte angivet
                    FÅ MER INFO OM LOKALEN
                    
            
        Du länkas till en annan portal, som kan kan kräva betalning eller skapande av en använderprofil
                Lokal för dig som vill finnas mitt i centrala Landskrona!
            Välkommen att hyra en charmig lokal i centrala Landskrona!
Nu har ditt företag chansen att hyra kontor i denna centrala och vackra byggnad mitt i Landskrona. Här finns möjligheten att anpassa ytskikt och i viss mån layout av kontorsytorna efter just era behov.
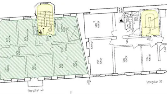
Lokalerna om 177 respektive 280 kvadratmeter är belägna i en byggnad uppförd 1920 och utformade för kontorsverksamhet. Alldeles intill på samma fastighet ligger en nyare del från 1974 som inhyser rättsväsende.
Det centrala läget, endast en minuts promenad från torget, gör det enkelt för både anställda och besökare att ta sig till och från kontoret. I området finns ett stort utbud av affärer, restauranger samt närhet till både park och hamn, vilket ger en trivsam arbetsmiljö. Det är nära till goda kollektivtrafikförbindelser och till parkeringsmöjligheter.
Varmt välkommen att lämna en intresseanmälan!
Kontor
 
 
 
177 m2 - kontor
 
Hiss finns i fastigheten
 
Enligt överenskommelse.
Landskrona/Landskrona/Centrum
 
Storgatan 38-40
 
)
            
        
            Nu har ditt företag chansen att hyra kontor i denna centrala och vackra byggnad mitt i Landskrona. Här finns möjligheten att anpassa ytskikt och i viss mån layout av kontorsytorna efter just era behov.
Lokalerna om 177 respektive 280 kvadratmeter är belägna i en byggnad uppförd 1920 och utformade för kontorsverksamhet. Alldeles intill på samma fastighet ligger en nyare del från 1974 som inhyser rättsväsende.
Det centrala läget, endast en minuts promenad från torget, gör det enkelt för både anställda och besökare att ta sig till och från kontoret. I området finns ett stort utbud av affärer, restauranger samt närhet till både park och hamn, vilket ger en trivsam arbetsmiljö. Det är nära till goda kollektivtrafikförbindelser och till parkeringsmöjligheter.
Varmt välkommen att lämna en intresseanmälan!
Typ
Kontor
Lokalnr
Storlek
177 m2 - kontor
Hiss
Hiss finns i fastigheten
Tillträde
Enligt överenskommelse.
Kommun/Ort/Område
Landskrona/Landskrona/Centrum
Gatuadress
Storgatan 38-40
Byggår (Renovår)
)
Information och data
Denna kontorlokal ligger på Storgatan i Landskrona. Landskrona ligger i kommunen Landskrona, som ligger i Skåne. Lokalen är totalt 177 m2.
 
                    
                 
                    
                 
                    
                 
                    
                