Foto levereras av Google Street View och kan vara oprecist:
Kontor att hyra, Söderort,
, Stockholm Söderort- Kontor att hyra
- 691 m2
- 86 000 kr. per månad
, Stockholm Söderort
- Kontor att hyra
- 691 m2
- 86 000 kr. per månad
FÅ MER INFO OM LOKALEN
Du länkas till en annan portal, som kan kan kräva betalning eller skapande av en använderprofil
Kontor att hyra, Söderort,
Fakta
- 506629
- Kontor
- 691 m2
- 1 032 000 kr.
- 86 000 kr.
- 1 493,49 kr.
FÅ MER INFO OM LOKALEN
Du länkas till en annan portal, som kan kan kräva betalning eller skapande av en använderprofil
Kontor att hyra i Söderort
Välbelägen ljus och välhållen lokal i trevliga och familjära Björkhagen. Centrumet erbjuder allt från livsmedel, bibliotek, restauranger, gym, vårdcentral och hårvård, skolor, förskolor, kyrka m m
Tunnelbana och bussar stannar precis utanför centrumet.
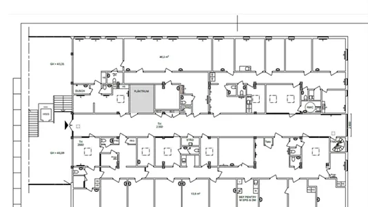
Lokalen har idag många rum i flera olika storlekar samt mötesrum och omklädningsrum, flera WC, 1 st RWC och pentry. Ordentlig lasthiss finns i trapphuset.
Inplaceringsritningen nuläge visar befintlig planlösning och Illustrationsritningen visar ett förslag på hur ytan kan utformas. Mycket goda parkeringsmöjligheter finns i området.
Lokalen kan hyras utan moms. Lokalen kan passa t ex Vård och Omsorg, Skola, Kontor m m. Hyresnivån får ses som mycket fördelaktig.
Ytan 691 kvm
Hyra ca 86 000 kr/mån exkl driftskostnader.
Tillträde enligt ö k
Hyresvärd Svenska Bostäder
Group AB
jorgen@.se
Tunnelbana och bussar stannar precis utanför centrumet.
Lokalen har idag många rum i flera olika storlekar samt mötesrum och omklädningsrum, flera WC, 1 st RWC och pentry. Ordentlig lasthiss finns i trapphuset.
Inplaceringsritningen nuläge visar befintlig planlösning och Illustrationsritningen visar ett förslag på hur ytan kan utformas. Mycket goda parkeringsmöjligheter finns i området.
Lokalen kan hyras utan moms. Lokalen kan passa t ex Vård och Omsorg, Skola, Kontor m m. Hyresnivån får ses som mycket fördelaktig.
Ytan 691 kvm
Hyra ca 86 000 kr/mån exkl driftskostnader.
Tillträde enligt ö k
Hyresvärd Svenska Bostäder
Group AB
jorgen@.se
Information och data
Denna kontorlokal ligger på Kontor - i Söderort. Söderort ligger i kommunen , som ligger i Stockholm. Lokalen är totalt 691 m2. Hyrespris: 1 032 000 kr. per år.